3D-Scan & Bestandsaufnahme eines Mehrfamilienhauses in Einsiedeln
Einsiedeln, Schweiz
#Gebäudevermessung, #3D Scan, #PläneAusPunktwolke
- Zur Website
- Zu den Grundrissen
- Zur Broschüre
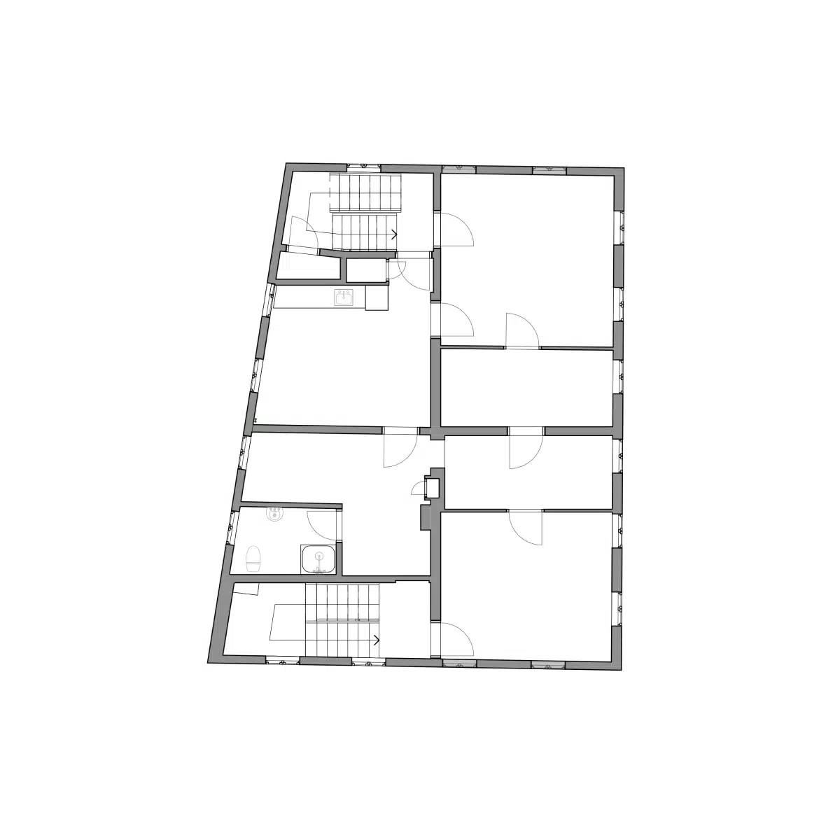
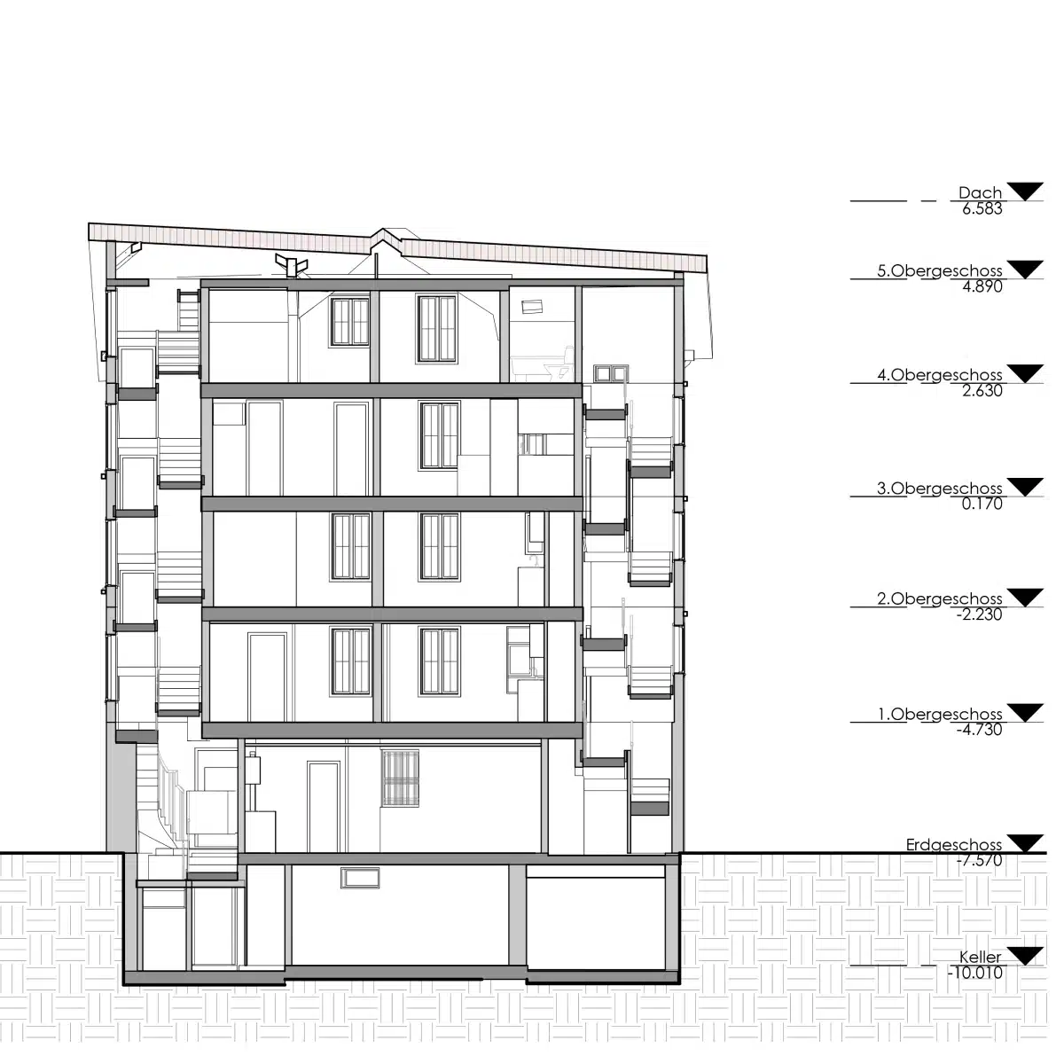
Das Mehrfamilienhaus in Einsiedeln war über die Jahre mehrfach umgebaut worden. Viele dieser kleineren Eingriffe wurden jedoch nicht vollständig dokumentiert, sodass keine verlässlichen und aktuellen Bestandspläne mehr vorlagen. Für den geplanten weiteren Umbau benötigte der Architekt eine präzise Grundlage, um sicher planen zu können.
bimcadlaunchpad.ch führte eine umfassende 3D-Vermessung des Gebäudes durch. Aus der erzeugten Punktwolke entstanden detaillierte 2D-Bestandspläne, auf deren Basis der Architekt das Projekt sicher weiterentwickeln kann.
CAD- und BIM-Modelle aus Punktwolke für ein Mehrfamilienhaus in Einsiedeln SZ, Schweiz
scan to plan einsiedeln 2d plaene
aufmass mfh einsiedeln bestandsplaene
3d scan einsiedeln umbau projekt
bestandsaufnahme mfh einsiedeln grundriss
3D-Modell aus 3D-Gebäudevermessung in Einsiedeln SZ | BIMCADLaunchPad
as built plan mfh einsiedeln
mfh einsiedeln 3d scan ansicht